Een pas getrouwd stel kwam naar ons toe met de vraag: we hebben een oud klaslokaal met een stuk zolder gekocht en we willen er een apartement van maken, HELP!
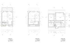
We hebben het ontwerp opgezet als een compact maar hoog opgetrokken ruimtelijk landschap, waarin wonen, werken en ontspannen in één doorlopende verticale compositie zijn samengebracht. In plaats van klassieke verdiepingen is gekozen voor split-levels die visueel met elkaar verbonden blijven.